ID об'єкта: MAY4426

Місто / Район: Кіренія-Гірне / Есентепе

До пляжу: 550 м

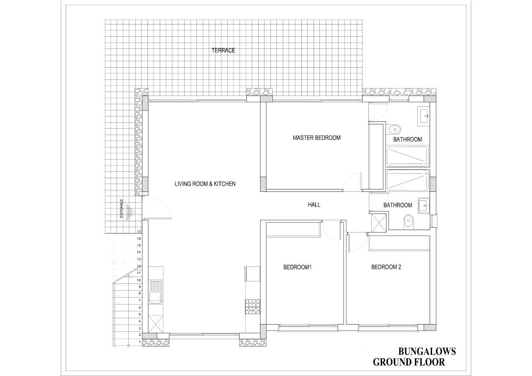
Кімнат: 0+1,2+1

Дата здачі:

Площа: 37-140 м²

Пропозиція: Від забудовника

Поверх: 1/2

Вид: Море / Природа / Басейн

Меблі: No

Інфраструктура об'єкта

  • Зелений сад
  • Відкритий басейн
  • Парковка

Про об'єкт

Роздрукувати