ID об'єкта: MAY6219

До центру: 400 м

Місто / Район: Балі / Букіт

До пляжу: 500 м

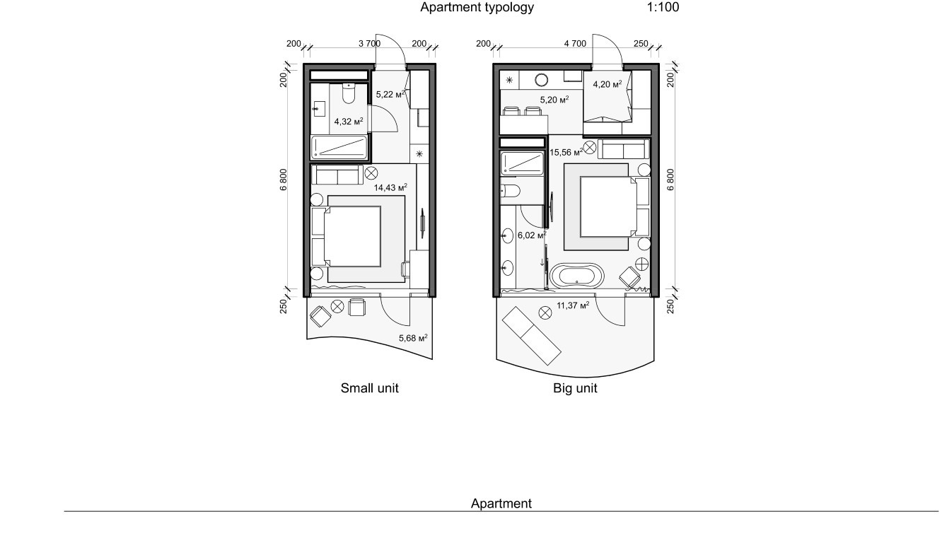
Кімнат: 1+1,2+1,3+1

До аеропорту: 33 км

Ванных комнат: 1-3

Дата здачі: Вересень 2026

Балкон: 1-3

Площа: 31-175 м²

Пропозиція: Від забудовника

Поверх: 1/4

Вид: Море / Природа / Басейн

Меблі: No

Інфраструктура об'єкта

  • Бар біля басейну
  • Зелений сад
  • Зони відпочинку та барбекю
  • Зона відпочинку з шезлонгами
  • Кафе/Ресторан
  • Coworking
  • Mini club
  • Відкрита парковка
  • Відкритий басейн
  • Прогулянкові доріжки
  • Власний пляж
  • Тераса
  • СПА-зона

Про об'єкт

Роздрукувати